Healthy home design & build

Looking for a great home at a fair price, look no further.  Our smart energy efficient homes are well designed, masterfully crafted, and incorporate the latest and best building practices and technology.

42 Grindstaff Drive, Asheville NC 28803

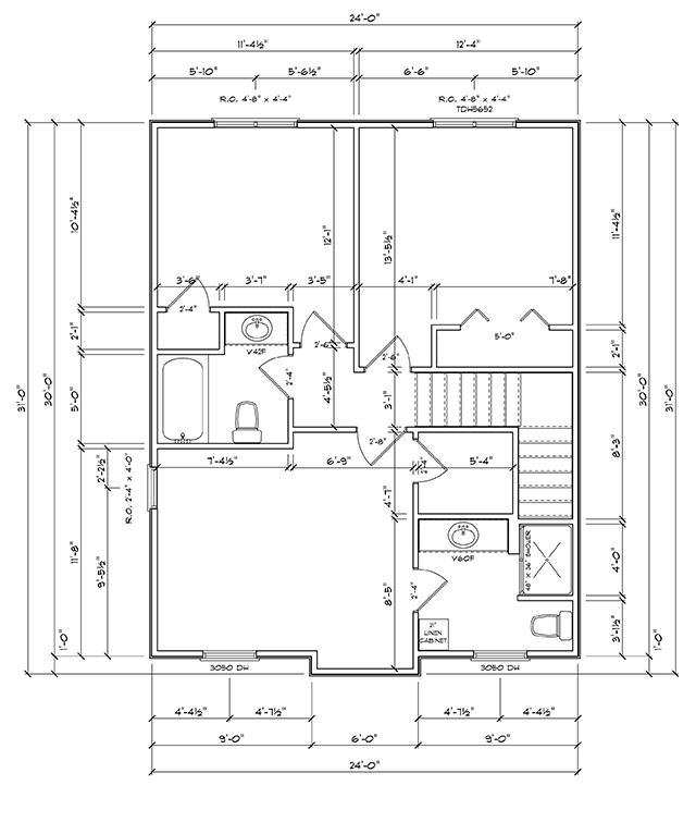
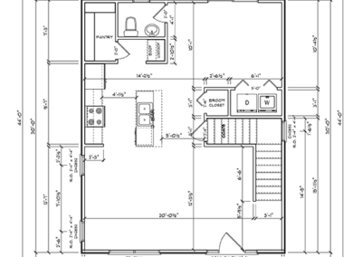
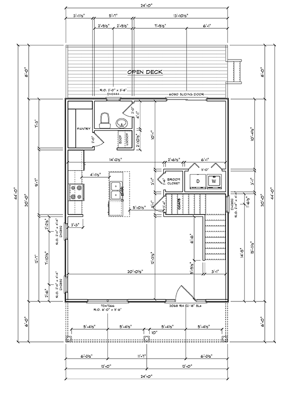
This stunning 3 bed 3 bath Craftsman Four Square style home includes a fully open 1st floor plan with living room / dining / kitchen and gracious storage space, exquisite vaulted master suite with two additional spacious rooms upstairs.   

42 Grindstaff is rich with character and designed to blend into St. Dunstans Historical District near Biltmore Village.  This home is being EnergyStar Certified and includes the following advanced building systems:  LED Lighting and EnergyStar appliances, spray foam insulation, sealed exterior weather barrier, and a high efficiency HVAC split-system.  All hardwood floors and tile, solid wood cabinetry, low VOC paints, and ductless HVAC make for a healthy non-toxic home.

Built in 2021

 

Our Story

Two family friends joined forces to offer stunning homes in the Asheville market.  Wallace Smith has been building entry level to luxury beach-front homes in NC for over 50 years.  Shawn Verbrugghe was a licensed builder in MI, and a Energy Professional by trade.  Their values line up to bring you beautifully designed homes built to deliver efficiency and world-class craftsmanship.

let's build your custom home together

The good people at Peech Homes have been in the residential home building industry for nearly 60 years.  We apply old world workmanship with today’s building technology to offer great homes at a good value.

Drop Us a Line

This field is for validation purposes and should be left unchanged.