Healthy home design & build

Looking for a great home at a fair price, look no further.  Our smart energy efficient homes are well designed, masterfully crafted, and incorporate the latest and best building practices and technology.

46 Grindstaff Drive, Asheville NC 28803

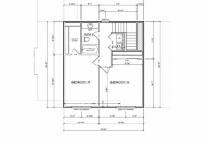
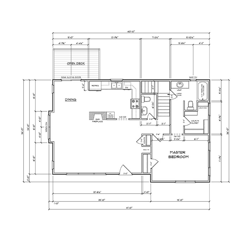
This 3 bed 3 bath home was originally built in the 1950s ranch and was renovated to include a 1st floor master suite and an open living room / dining / kitchen layout.  The restoration took the home down to the exterior studs and the home’s foundation and soil were in excellent condition, which allowed a 2nd story addition to include two large vaulted ceiling bedrooms and additional bath.      

Home will have most all the attributes of an EnergyStar home without the label since it’s a renovation:  LED Lighting and EnergyStar appliances, spray foam insulation, sealed exterior weather barrier, and a high efficiency HVAC split-system.  All hardwood floors and tile, solid wood cabinetry, low VOC paints, and ductless HVAC make for a healthy non-toxic home.

Our Story

Two family friends joined forces to offer stunning homes in the Asheville market.  Wallace Smith has been building entry level to luxury beach-front homes in NC for over 50 years.  Shawn Verbrugghe was a licensed builder in MI, and a Energy Professional by trade.  Their values line up to bring you beautifully designed homes built to deliver efficiency and world-class craftsmanship.

let's build your custom home together

The good people at Peech Homes have been in the residential home building industry for nearly 60 years.  We apply old world workmanship with today’s building technology to offer great homes at a good value.

Drop Us a Line